This whole-home renovation went from a functional living space to a luxurious living space.
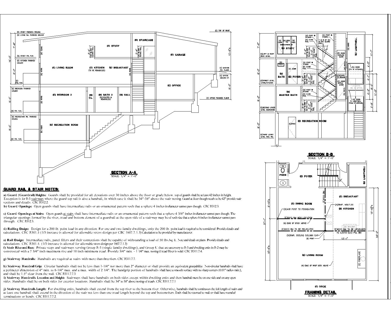
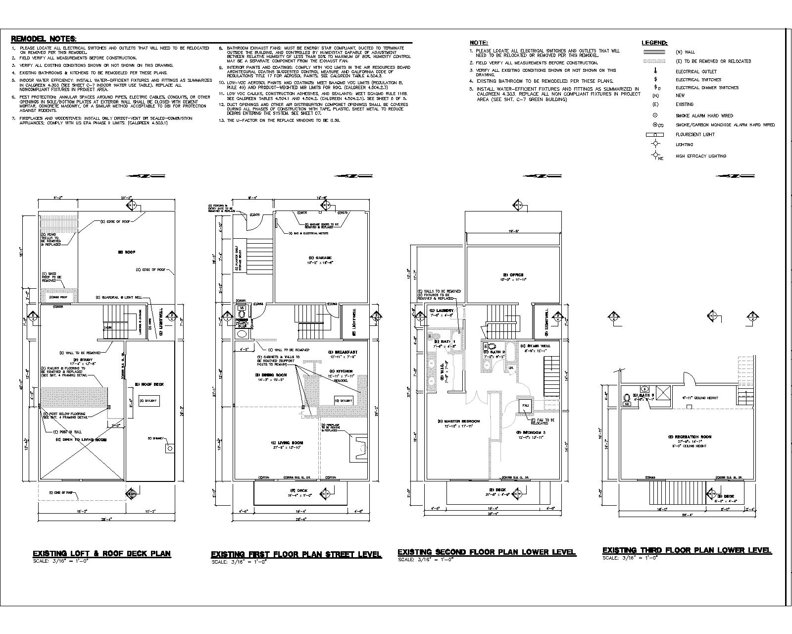
In working on this project, I found the existing conditions in floor plan and conditions to be very poor. The renovation included improving the floor plan flow of movement, upgrades to the kitchen and bath, and adding to the amenities. Also, adding natural light to the stairwell while providing an indoor garden with sliding door on the ground floor, making all space in the home functional.
Project Photos
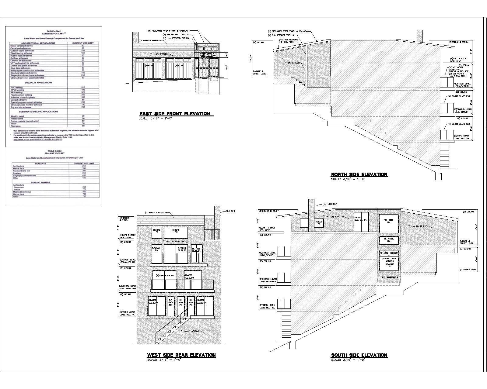
Drawings/Plans
